KOMPLETNÍ SERVIS PŘI PRODEJI NOMOVITOSTÍ
PORADENSTVÍ
PŘEVODY MÉDIÍ
ODHADY, POSUDKY
DAŇOVÉ PORADENSTVÍ (nemovitosti)
Nevíte, jak nejvýhodněji financovat nákup nemovitosti?
V naší kanceláři vám poradíme.


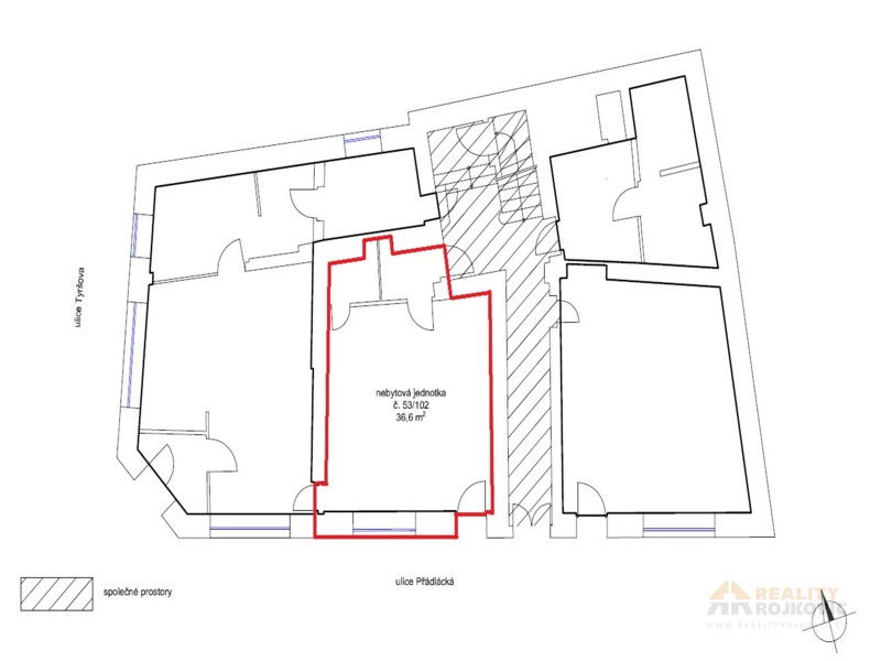
NEBYTOVÝ PROSTOR 36 m²
Broumov, okres: Náchod
4500,-Kč/měsíc
Nebytový prostor s výměrou 36 m² vhodný k provozování kanceláře či obchodu s vlastním vchodem z frekventované ulice. Veřejné parkoviště u objektu.
| Číslo nabídky 000585 | Cena v Kč | 4 500 |
| Cena v EUR | 188 | |
| Mám zájem o tuto nemovitost | Tisk | Výpočet splátky hypotéky nebo úvěru | Zpět » |



